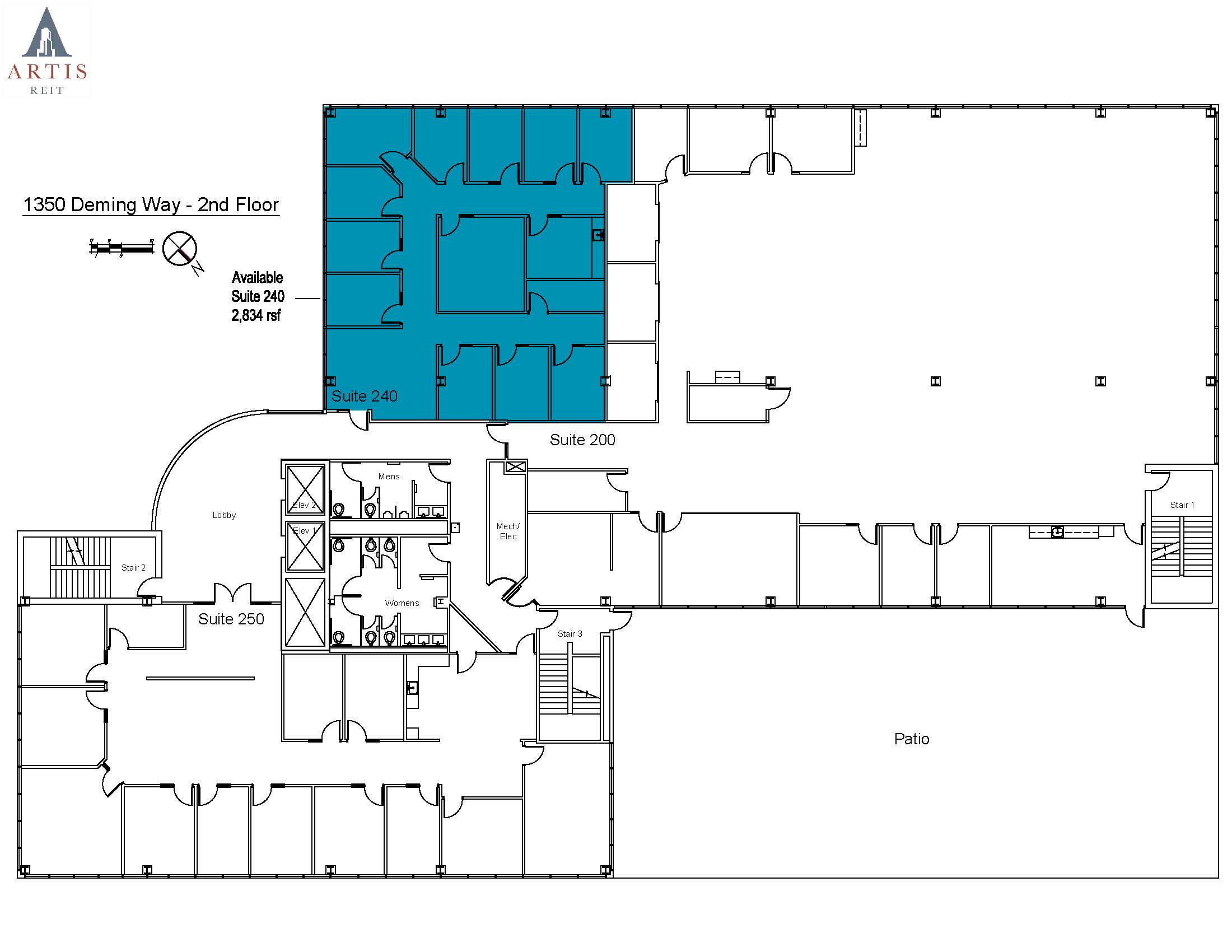
1350 Deming Way – Deming Park Building - Suite 240
| Property | Type | Available |
|---|---|---|
| 1350 Deming Way – Deming Park Building | Office for Lease | 2834 sq ft |
Suite 240 is lease ready and can fully furnished with modern decor and this floor has exclusive access to a dedicated lounge breakroom and conference room. This suite includes 11 offices, kitchen/breakroom, lobby, conference room and storage. Perfect for any Tenant that needs a space immediately.
LOCATION: Located just blocks from the West Beltline Highway 12/14 with quick access to the west and southern suburbs. This site offers unmatched access and visibility. Retail, restaurants and hotel accommodations all within walking distance. During the spring and summer, tenants enjoy the farmers’ market and walking/bike paths.
AMENITIES: 1350 Deming Way is directly connected to all the Artis REIT amenities in Greenway; including underground parking, conference centers, board rooms, no-fee fitness center, card access, fiber optics, large surface parking lot, first class property management, on-site maintenance staff and 24/7 emergency maintenance response.

